067-156-33-79
Отдел продаж
095-821-58-58
Комплексная очистка хозяйственно-бытовых, дождевых и сточных вод на бензозаправочных станциях
Очистка сточных вод хозяйственно-бытовых, дождевых на бензозаправочных станциях по отдельности представляет серьёзную проблему, так как требует самостоятельных систем очистки с использованием сорбентов (при очистке дождевых сточных вод от нефтепродуктов) или коагулятов. Ввиду необходимости устройства трёх самостоятельных систем очистки, периодической замены сорбентов и постоянного пополнения дорогостоящих коагулянтов, вопрос канализирования бензозаправочных станций, не подключённых к центральной канализации, комплексно практически нигде не решён. Существующие септики, как правило, имеют отверстия в стенах, через которые просачивается неочищенная сточная вода в почву, загрязняя водоносные горизонты. Дождевая вода, в первые 20 минут дождя собранная с территории бензозаправочной станции, согласно СНиП 2.04.03.-85, считается сточной и требует вывоза ассенизационной автомашиной на очистные сооружения (при отсутствии локальных сооружений очистки). Практически никто эти сточные воды на очистные сооружения не вывозит. Такие сточные воды, по степени загрязнения приближающиеся к хозяйственно-бытовым, остаются в дождеприёмнике до следующего дождя, при котором вытекают и попадают в грунтовые воды, загрязняя водоносные горизонты.


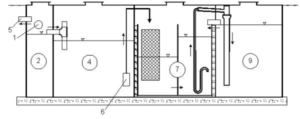
Система "BIOTAL-AUTO" комплексной очистки сточных вод (хозяйственно-бытовых, дождевых) автозаправочной станции производительностью менее 25 м3/сутки
1 - приток дождевых вод; 2 - разделительный колодец-песколовка; 3 - загрязненный дождевой сток (20 минут дождя); 4 - приемный резервуар загрязненного дождевого стока; 5 - условно чистый дождевой сток; 6 - насос перекачки дождевых сточных вод в приемную камеру установки биологической очистки сточных вод BIOTAL (7); 8 - приток хозяйственно-бытовых сточных вод ; 9 - иловая емкость; 10 - подача раствора гипохлорита натрия; 11 - сборный колодец очищенных и обеззараженных сточных вод; 12 - сброс очищенных сточных вод в водоток, дренаж или на вторичное использование.
Предлагаемая схема с использованием системы BIOTAL позволяет комплексно очистить все указанные сточные воды. Необходимым условием является наличие хозяйственно-бытовых сточных вод. Согласно СНиП 2.04.03-85, допускается совместная с хозяйственно-бытовыми стоками очистка промышленных и дождевых сточных вод. Подключатся к центральной канализации, даже если есть такая возможность, нецелесообразно. Применение установок BIOTAL позволяет уйти от дорогостоящих систем для очистки указанных сточных вод, и очистить все стоки на установке BIOTAL биологическим путём, без каких-либо коагулянтов и сорбентов. При этом в установку подают хозяйственно-бытовые сточные воды, а в дождеприемнике, рассчитанном на прием первых 20 минут дождя, устанавливается погружной насос, равномерно дозирующий в установку залповый дождевой сток.
Дождевой сток, содержащий нефтепродукты, очищается совместно с хозяйственно-бытовым стоком, при этом на 1 мг/л нефти должно приходится 7 мг/л БПКполного хозяйственно-бытовых стоков (А.И. Мацнев. Водоотведение на промышленных предприятиях. – Львов: Вища школа, - 1986. – с.137-138).

.jpg)



